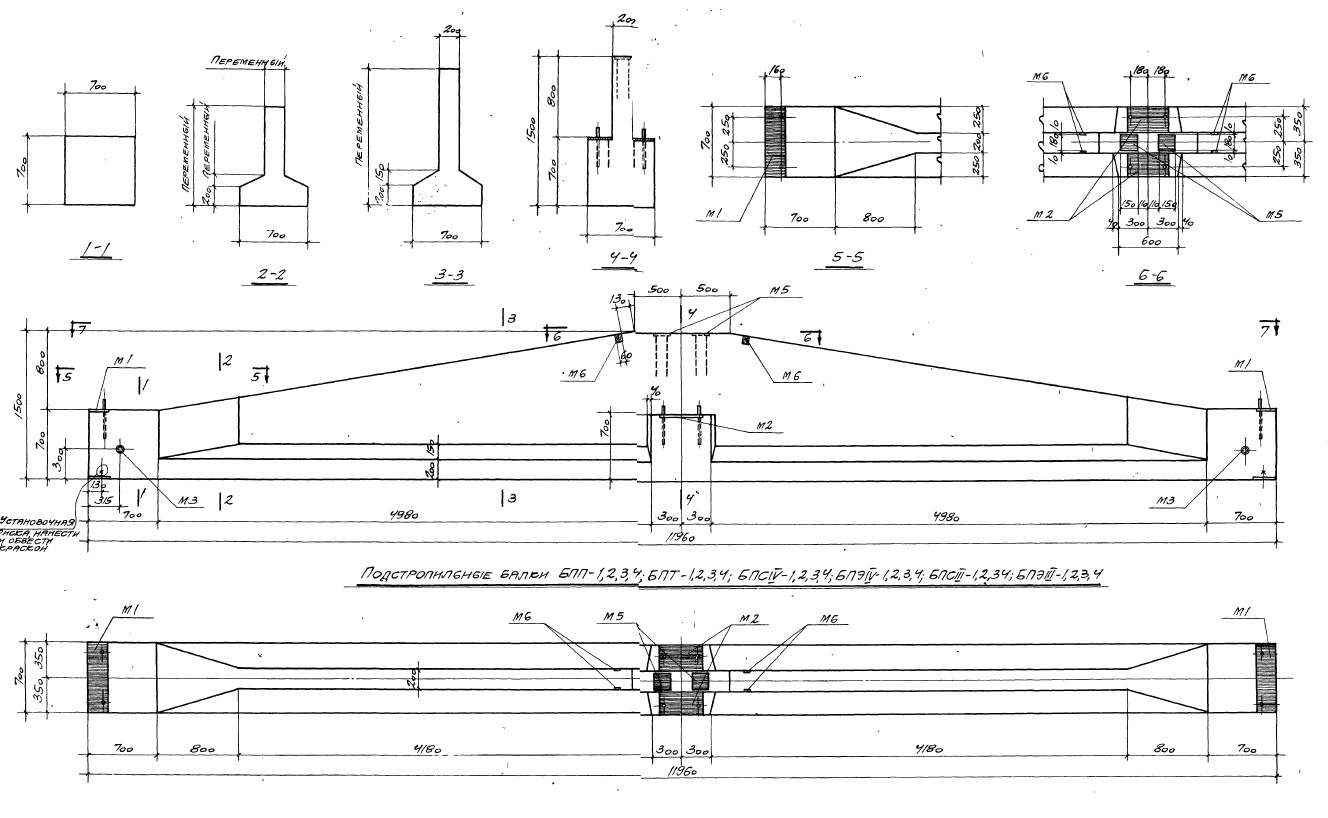
Балка подстропильная БПЭ III-4 предназначена для использования в строительстве как несущий элемент кровли. Изготовлена из железобетона, что обеспечивает высокую прочность и долговечность конструкции. Балка имеет специальное пазообразное соединение для удобства монтажа и обеспечения надежной фиксации. Идеально подходит для строительства жилых домов, административных зданий, складов и других объектов.









