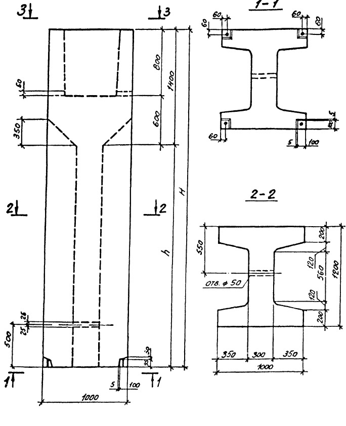
Блок-стакан верхний ВБ 10-12-18-1 предназначен для использования в строительстве железобетонных конструкций. Он обеспечивает надежное соединение элементов и обеспечивает устойчивость всей конструкции.
Блок-стакан верхний ВБ 10-12-18-1 отличается высоким качеством материала и прочностью, что делает его идеальным выбором для строительства зданий, мостов, туннелей и других сооружений.









